The Cross, Church Hill, Bramhope

£249,950
For Sale
3 Bedrooms1 Bathrooms1 Reception RoomsTerraced House

Share this property

  • No Chain
  • Three Bedrooms
  • Ready To Move In
  • Sought After Location
  • Gas Central Heating
  • Lawned Garden
  • Great Views
  • EPC Rating: D
  • Council Tax Band: C

Read more

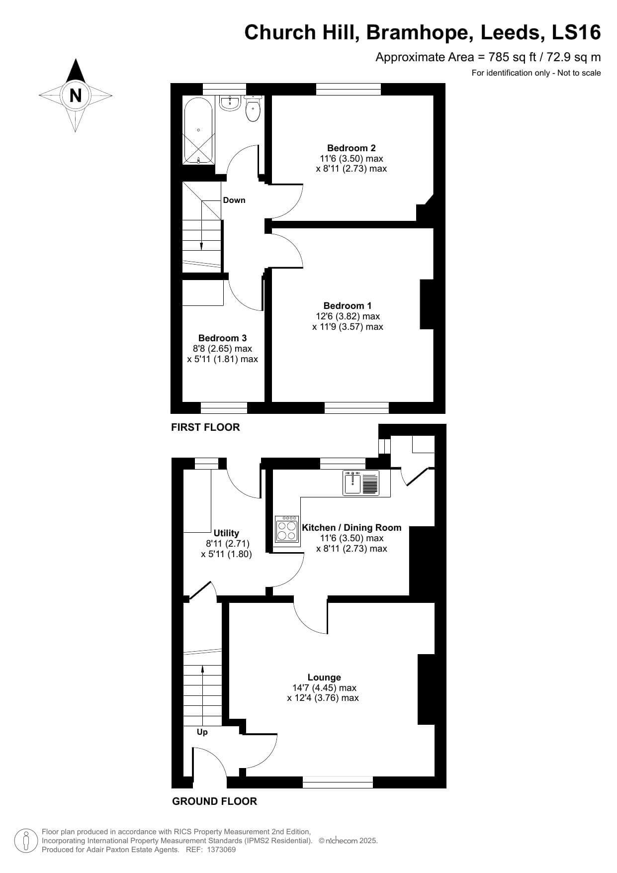
*THREE BEDROOM MID-TERRACED HOUSE - NO ONWARD CHAIN** Adair Paxton are pleased to offer to the market this three bedroom mid terrace house full of charm and character, in the heart of the beautiful and popular village of Bramhope. Just a short stroll to the famous "Fox and Hounds" pub and other local amenities, this lovely property briefly comprises; Hallway, living room, kitchen and utility to the ground floor. To the first floor there are three bedrooms and a house bathroom. Externally the property has a lawned garden to the front, a courtyard style garden to the rear and on street parking. Council Tax Band D. EPC rating D.

Entrance Hall
Via front entrance door. Stairs to first floor.

Lounge (L: 4.5 x W: 3.7 Meters)
Light and airy living room with uPVC double glazed window to front. Gas central heating radiator.

Kitchen/Diner (L: 3.5 x W: 2.7 Meters)
Fitted with a range of wall, base and drawer units with worktops over. Integrated oven with electric hob and extractor hood over. Space for fridge/freezer. Part tiled walls. uPVC double glazed window. Door to store cupboard.

Utility (L: 2.7 x W: 1.8 Meters)
Fitted with matching units and worktops to the kitchen. Plumbing for washing machine. Door leading to rear garden.

First Floor

Bedroom 1 (L: 3.8 x W: 3.6 Meters)
Double bedroom with uPVC double glazed window to front with far reaching views. Gas central heating radiator.

Bedroom 2 (L: 3.5 x W: 2.7 Meters)
Second double bedroom with uPVC double glazed window to rear. Gas central heating radiator.

Bedroom 3 (L: 2.7 x W: 1.8 Meters)
Third bedroom with uPVC double glazed window to front with far reaching views. Gas central heating radiator.

House Bathroom
Fitted with a three piece suite comprising bath with shower over, WC and wash hand basin. Tiled walls. uPVC double glazed window to rear.

Outside
To the front of the property is a garden which has been mainly laid to lawn. To the rear is a courtyard style garden.

Subscribe to our mailing list
Latest property news, products & offers