Foundry Lane, Leeds

£239,950
For Sale
3 Bedrooms1 Bathrooms2 Reception RoomsSemi-Detached House

Share this property

  • Three Bedroom Semi-Detached House
  • Convenient Location
  • No Chain
  • Partly Refurbished
  • Open Plan Kitchen/Diner
  • Downstairs WC
  • Gardens & Driveway
  • Council Tax Band: B
  • EPC Rating: C

Read more

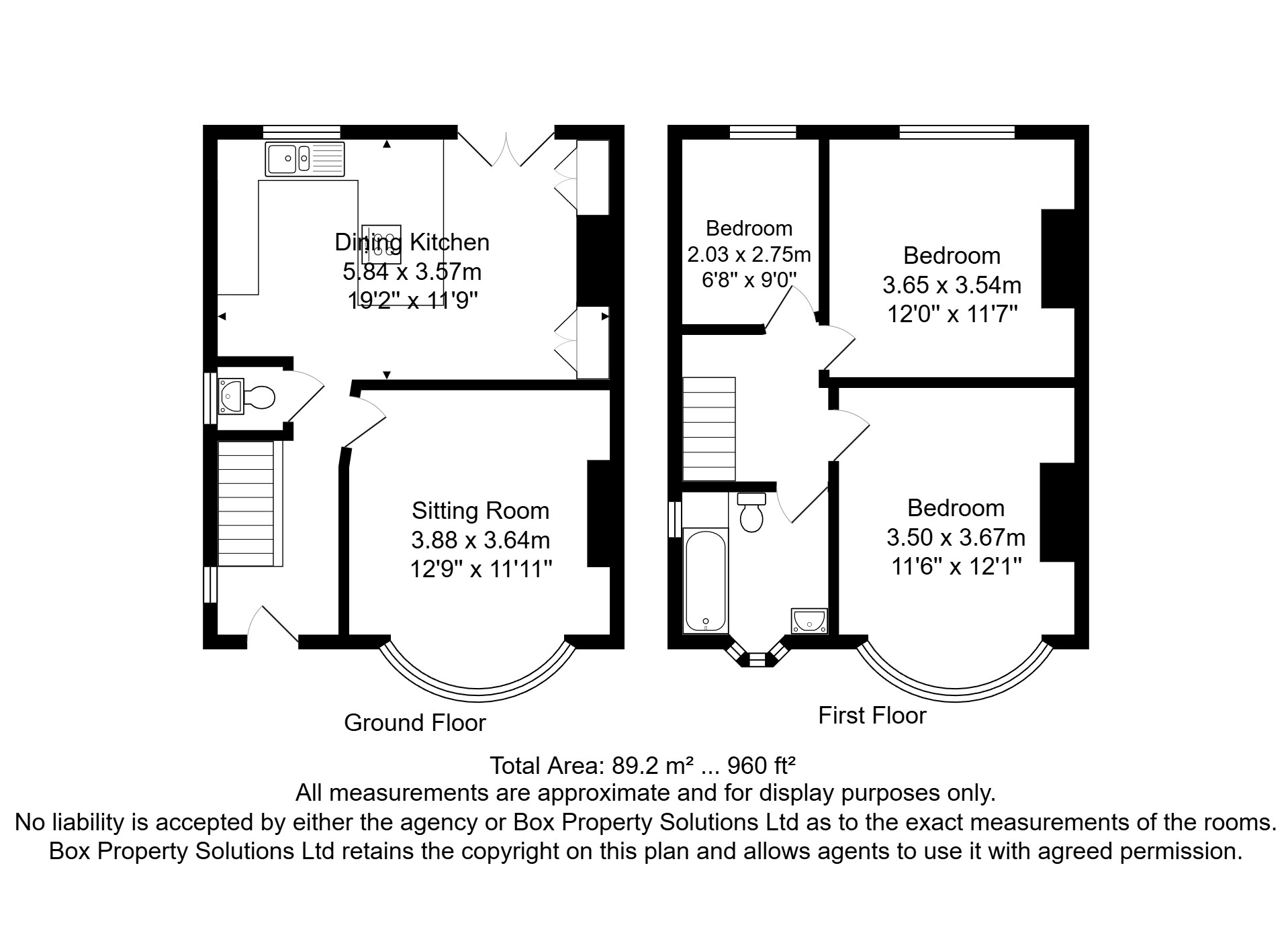
**THREE BEDROOM SEMI-DETACHED HOUSE - NO ONWARD CHAIN** Adair Paxton are pleased to offer to the market this three bedroom semi-detached family home in this convenient area of Leeds 14. This spacious property is ready to move into and briefly comprises; entrance hall, lounge, open plan kitchen/diner and guest WC to the ground floor. To the first floor there are two double bedrooms, a single bedroom and a house bathroom. Externally, the property has a driveway offering off street parking and lawned gardens to the front and rear.

Entrance Hall
Via front entrance door. Gas central heating radiator. Stairs to first floor.

Lounge (L: 3.9 x W: 3.6 Meters)
Light and airy living room with uPVC double glazed bay window to front. Gas central heating radiator.

Open Plan Kitchen/Diner (L: 5.9 x W: 3.6 Meters)
Open plan kitchen fitted with a range of wall, base and drawer units with worktops over. Breakfast bar. Integrated electric oven with 4-ring hob over. 1.5 bowl sink with mixer tap and drainer. Space for double fridge/freezer. uPVC double glazed window to rear. Inset ceiling spotlights. Opening to the dining room uPVC double glazed doors leading out to the rear garden. Gas central heating radiator.

Guest WC / Cloak Room
Guest WC fitted with combined two-in-one wash hand basin and toilet. uPVC double glazed window.

First Floor Landing

Bedroom 1 (L: 3.5 x W: 3.7 Meters)
Spacious double bedroom with uPVC double glazed bay window to front. Gas central heating radiator. Feature fire surround.

Bedroom 2 (L: 3.7 x W: 3.5 Meters)
Second double bedroom with uPVC double glazed window to rear. Gas central heating radiator. Feature fire surround.

Bedroom 3 (L: 2.0 x W: 2.7 Meters)
Third bedroom with uPVC double glazed window to front. Gas central heating radiator.

Bathroom
Fitted with a three piece suite comprising; bath with shower over, WC and wash hand basin. Tiled walls. uPVC double glazed window.

Outside
To the front of the property is a lawned garden and a driveway offering off street parking. To the rear is an enclosed garden which has been mainly laid to lawn with a patio ideal for entertaining.

Parking

Central Heating

Subscribe to our mailing list
Latest property news, products & offers