Boyds Mill, East Street, Leeds

£275,000
SSTC
2 Bedrooms2 Bathrooms1 Reception RoomsFlat

Share this property

  • GRADE II LISTED
  • Converted Mill
  • Two Allocated Parking Spaces
  • Two Bedrooms, Two Bathrooms
  • Leeds City Centre
  • Great Location
  • First Floor
  • Gated Development
  • Council Tax Band: D
  • EPC Rating: E

Read more

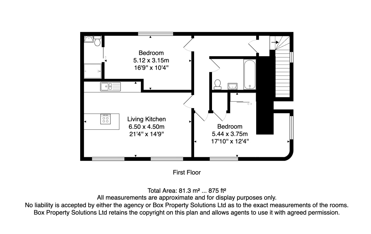
***BEAUTIFULLY PRESENTED TWO BEDROOM, TWO BATHROOM APARTMENT - TWO ALLOCATED PARKING SPACES - GATED DEVELOPMENT*** Adair Paxton are pleased to offer to the market this first floor two bedroom, two bathroom apartment in the gated Boyds Mill development. Benefitting from its own private entrance and bursting with original features, this superb apartment must be viewed to be appreciated. 8 Boyds Mill is one of 10 bespoke and individual apartments which briefly comprises; Private entrance with stairs leading to the main entrance door, entrance hall, open plan kitchen/living room/dining area, master bedroom with en-suite shower room, second double bedroom and house bathroom. Forming part of the fast developing eastern corridor, the apartment is ideally located for easy access in and out of the city, as well as the local amenities found at Leeds Dock, Brewery Wharf and The Calls.

Private Entrance
Accessed via front entrance door. Stairs to first floor apartment.

Hallway
Via front entrance door. Wall mounted electric radiator. Secure entry phone system.

Open Plan living/dining/kitchen (L: 6.2 x W: 4.4 Meters)
Fitted with a range of wall, base and drawer units with marble worktops over. 1.5 bowl stainless steel sink with mixer tap. Integrated double oven, electric hob and feature extractor hood over, microwave, dishwasher and washing machine. Breakfast bar. Large double glazed window. Opening to the living area with a second large double glazed window boasting a great deal of natural light. Two wall mounted electric radiators.

Master Bedroom (L: 5.1 x W: 3.1 Meters)
Master bedroom with large double glazed window. Built in SONOS sound system. Wall mounted electric heater. Inset ceiling spotlights.

En-Suite Shower Room
Fitted with a three piece suite comprising; walk in shower cubicle, WC and wash hand basin. Tiled walls.

Bedroom Two (L: 5.4 x W: 3.7 Meters)
Second double bedroom with dual aspect double glazed windows. Built in wardrobes. Built in store cupboard. Inset ceiling spotlights.

Bathroom
Fitted with a three piece suite comprising; bath with shower over, WC and wash hand basin. Tiled walls. Inset ceiling spotlights.

Parking
Two Allocated parking spaces.

Tenure
Leasehold - 250 years from 2016. Ground rent - Deed of Variation in place, capped at £250pa for perpetuity

Service Charge
The service charges are £298.57 per month. The building insurance and water charges are included in the service charges

Subscribe to our mailing list
Latest property news, products & offers