Lakeview Court, Roundhay

£325,000
For Sale
2 Bedrooms2 Bathrooms1 Reception RoomsFlat

Share this property

  • Ground Floor Apartment
  • Gated Development
  • Two Double Bedrooms
  • Private Garage
  • Sought After Location
  • Balcony
  • Guest WC
  • Council Tax Band: C
  • EPC Rating: D

Read more

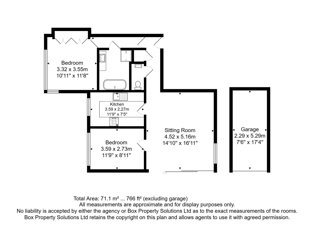
**BEAUTIFULLY PRESENTED TWO BEDROOM GROUND FLOOR APARTMENT** Situated in this much sought after gated development and having been recently refurnished by the current owner, this delightful apartment simply must be viewed to be appreciated. The property is ready to move into and briefly comprises; communal entrance, private entrance hall with store cupboard, guest WC, open plan lounge/dining room, newly refurbished breakfast kitchen, master bedroom with en-suite bathroom and second double bedroom. Externally, the property benefits from a private garage and visitor parking. Situated in well maintained communal gardens, the property enjoys a semi-rural feel, while being on the doorstep of all of the amenities available at Oakwood and Street Lane.

Communal Entrance
With video intercom entry system. Stairs and lift access to all floors.

Private Entrance Hall
Via front entrance door. Store cupboard. Steps leading down to the open plan living area.

Guest WC
Fitted with a two piece suite comprising; WC and wash hand basin.

Open Plan Lounge/Dining Area
Light and airy living area with uPVC double glazed window to side and uPVC double glazed sliding doors leading out to the balcony. Electric radiator.

Kitchen
Newly fitted kitchen. Fitted with a range of wall, base and drawer units with granite worktops over. Breakfast bar. Freestanding oven with extractor hood over. Integrated fridge, freezer and dishwasher. Sink with mixer tap. Electric radiator. uPVC double glazed window.

Master Bedroom
Double bedroom with uPVC double glazed window. Built in wardrobes. Electric radiator.

Bedroom Two
Second double bedroom with floor to ceiling uPVC double glazed window. Electric radiator.

House Bathroom
Beautiful four piece suite comprising; freestanding bath tub with mixer tap and hand shower over, shower cubicle, vanity wash hand basin and WC. Tiled walls and tiled floor.

Communal Garden
This gated development enjoys well maintained communal gardens and superb views over Roundhay Park and Soldiers Field.

Garage
Private Garage

Service Charge
Service charge: £955 Quarterly. This includes buildings insurance.

Tenure
Ground Rent - £25 per annum.

Parking

Subscribe to our mailing list
Latest property news, products & offers