Gillygate, WF8

£8,000 PA
To Let

Share this property

  • Prominent Location
  • Characterful Features
  • Ideal Starter Suite
  • Self-Contained
  • Kitchenette and WC Facilities

Read more

LOCATION
The property is located prominently fronting the pedestrianised section of Gillygate which is situated just off Market Place in the centre of Pontefract. Other nearby retails include Betfred, Vodafone, Greggs, Nationwide Building Society and Barclays.

DESCRIPTION
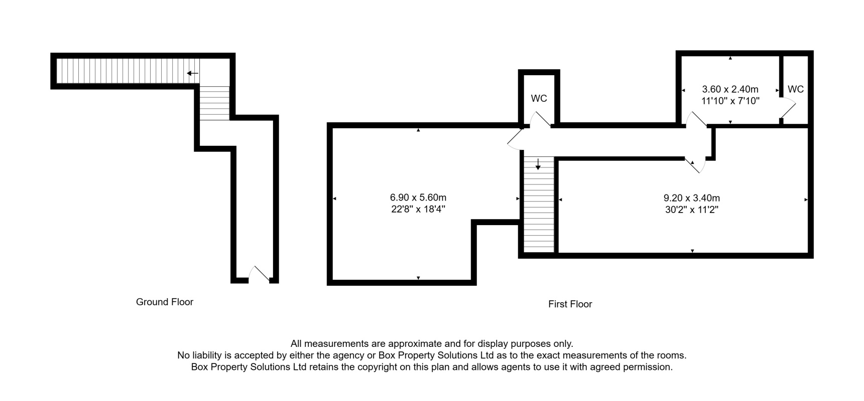
The first-floor retail premises which was previously used as a hair salon. The property is accessed via an internal staircase from the ground floor at Gillygate. The premises benefits from two large office / studio rooms, separate meeting room, Kitchenette and WC facilities.

ACCOMMODATION
Measured in accordance with the RICS Property Measurement (incorporating International Property Measurement Standards) 2nd Edition, January 2023, the unit provides an approximate net internal area of: First Floor: 903 Sq Ft (83.9 Sq M) Total: 903 Sq Ft (83.9 Sq M)

EPC
The property currently benefits from an EPC rating of D-93.

VAT
It is understood that the property is not elected for VAT.

LEGAL COSTS
Each party to the transaction will be responsible for their own legal expenses incurred.

TERMS
The property is available by way of a new full repairing and insuring lease for a term of years to be agreed at a commencing rent of £8,000 per annum.

SERVICE CHARGE
Further information available on application.

RATEABLE VALUE
We have made enquiries with the VOA website and can reveal that the subject property has a rateable Value: £3,050.

Subscribe to our mailing list
Latest property news, products & offers